グランディール A1号室 横浜市都筑区早渕[アパート]

グランディール A1号室 横浜市都筑区早渕[アパート]

アパート[横浜市都筑区早渕]

通常の賃貸物件はもちろん、高優賃・サービス付き高齢者向け住宅のことなら株式会社パワーズアンリミテッド賃貸検索サイト「楽賃」にお任せください。

  • 03-3356-0808
  • 9:30~18:30/定休日:土・日・祝

物件詳細

グランディール A1号室 横浜市都筑区早渕[アパート]

グランディール A1号室 横浜市都筑区早渕[アパート] の物件詳細ページです。

物件種別: アパート

お問い合わせ番号:20201560A1

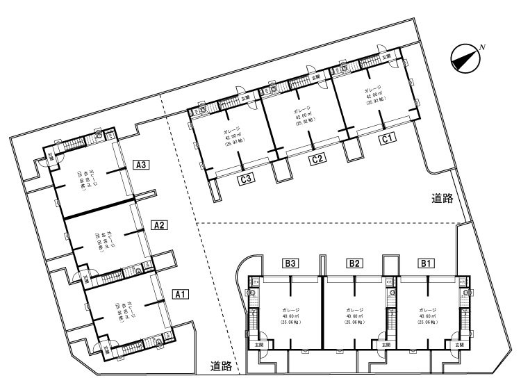
間取り(面積)

1LDK

( 98㎡ )

賃料(管理費等)

22.5万円

( 8000円 )

交通: 横浜市営ブルーライン 仲町台駅 徒歩20分

敷金/礼金: 2ヶ月 / 1ヶ月

保証金/敷引/償却金: - / - / -

所在地: 横浜市都筑区早渕

築年月: 完成予定
2026年3月

ポイント

新築ガレージハウス☆ガレージは床塗装・電動シャッター2機・給水設備・洗濯機置場・エアコン設置可☆

問い合わせ(無料)

TEL: 045-439-0028

お問い合わせ番号: 20201560A1

QRコード

資料請求などはこちら

問い合わせ(無料)

TEL: 045-439-0028

お問い合わせ番号: 20201560A1

セールスポイント

特徴 防犯カメラ,デザイナーズ,2F以上,ダブルロック,ディンプルキー,ダブルディンプルキー,当社管理物件,2階リビング,2階LDK,角住戸,保証人(不要)
設備 宅配BOX,対面式キッチン,ガスコンロ設置済,2口コンロ,グリル,ガスキッチン,オートバス,追い焚き風呂,浴室乾燥,トイレ2ヶ所,温水洗浄便座,洗面化粧台,エアコン,BS,CS,光ファイバー,インターホン,TVインターホン,給湯,ガス給湯,24時間換気システム,冷房,暖房,フローリング,クローゼット,ウォークインクローゼット,収納3ヶ所
光ファイバー エレベーター
天井高 空調 1基
駐車場 駐車場:有(敷地内) 無料 舗装 屋根:屋内 シャッター:リモコンシャッタ 車庫 大型車庫 駐車並列2台
周辺施設 高速道路入り口:第三京浜道路 都筑IC 上り 出口 120m
スーパー:東急ストア仲町台店 1716m
スーパー:オーケー 新吉田店 2374m
コンビニ:ファミリーマート 新栄町店 583m
ドラッグストア:クリエイトSD(エス・ディー) 港北北新羽店 1623m
ショッピング施設:ノースポート・モール 2818m

物件概要

物件名 グランディール A1号室
物件所在地 神奈川県横浜市都筑区早渕1丁目34 2,23,28 周辺地図
交通機関 横浜市営ブルーライン 仲町台駅 徒歩20分
間取り詳細 LDK(12.67畳) 洋室(8.24畳)
専有面積 98㎡
所在階/地上階数 2 / 2 部屋向き 南西
建物構造 木造 築年月 完成予定
2026年3月
総戸数 9
賃料 22.5万円 管理費等 8000円
敷金 2ヶ月 礼金 1ヶ月
保証金 - 更新料 新賃料 1ヶ月
積増し敷金 - 積増し理由
その他一時金 火災保険:23,000円 その他費用
損害保険 無 
契約形態 普通借家契約 期間 契約期間:2年
保証会社 必須 エポスカード 初回保証料総賃料の40% 14,000/年 保証人代行 必須
現況 未完成 入居時期 予定 2026年4月上旬
入居条件 ペット(不可),友人同士(不可)

その他

取引態様 代理 自社管理番号 20201560A1
情報更新日 2026年2月12日 次回更新予定日 2026年3月4日
不動産会社コード 1049 物件管理コード 1126622614620000007645
  • ※間取りの「S」はサービスルーム(納戸)です。
  • ※QRコードは(株)デンソーウェーブの登録商標です。

資料請求などはこちら

問い合わせ(無料)

TEL: 045-439-0028

お問い合わせ番号: 20201560A1

お問い合わせ先:株式会社パワーズアンリミテッド 横浜支店

所在地 : 神奈川県横浜市神奈川区西神奈川3丁目16-5 ブランシュエール2F
TEL : 045-439-0028
免許番号 : 国土交通大臣(5)第6263号
加盟団体 : (公社)神奈川県宅地建物取引業協会

この部屋を見学予約

ホームへ戻る